T3 VILLA CLEMENCE – LES SORINIERES
Les Sorinières (44840) Appartement - 3 Pièces Loyer : 904.25 € (dont charges : 66.84 €) Dépôt de garantie : 837.41 €Ce logement est à louer sous réserve de l’étude de votre dossier et des conditions de ressources. Vérifiez que vos revenus ne dépassent pas les plafonds de ressources dans les barèmes figurant en illustration de cette annonce.
Pour postuler sur ce logement, il vous faudra au préalable :
- S’il s’agit d’un logement social : avoir déposé une demande de logement social
- S’il s’agit d’un logement intermédiaire : avoir vérifié que vous remplissez les conditions sur la page Logements intermédiaires
Description
EXCLUSIVITE Appartement T3 NEUF – SANS FRAIS D’AGENCE – SOUMIS A PLAFOND DE RESSOURCES (Logements Locatifs Intermédiaires).
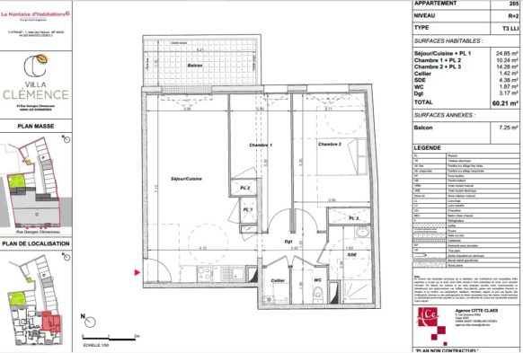
A louer, 1 appartement neuf de type 3, avec une surface habitable de 60.21 m² au cœur d’une résidence située 25 rue Georges Clémenceau, LES SORINIERES.
Ce logement est au 2ème étage avec ascenseur, avec un balcon et une place de parking aérienne.
Il bénéficie d’une cuisine aménagée (une plaque induction et sa hotte) ouverte sur le séjour, de deux chambres avec placard, d’une salle d’eau avec douche.
Location sous réserve de l’étude du dossier, sans frais d’agence.
Pour postuler, cliquez sur le bouton « nous contacter » après avoir vérifié que vous remplissez bien les conditions d’éligibilité.
Résidence
- Chauffage : Radiateur - Gaz - Individuel
Détails
- Étage : 2ème
- Ascenseur : Oui
- Parking : Oui
Performances énérgétiques
64
11











